Featured Listing: 1014 W Dickerson Street Bozeman MT 59718

Listing Snapshot:

Offered at $615,000 | Listed by Marcie Hahn-Knoff, Broker | REALTOR®

  • BSCMLS # 409325

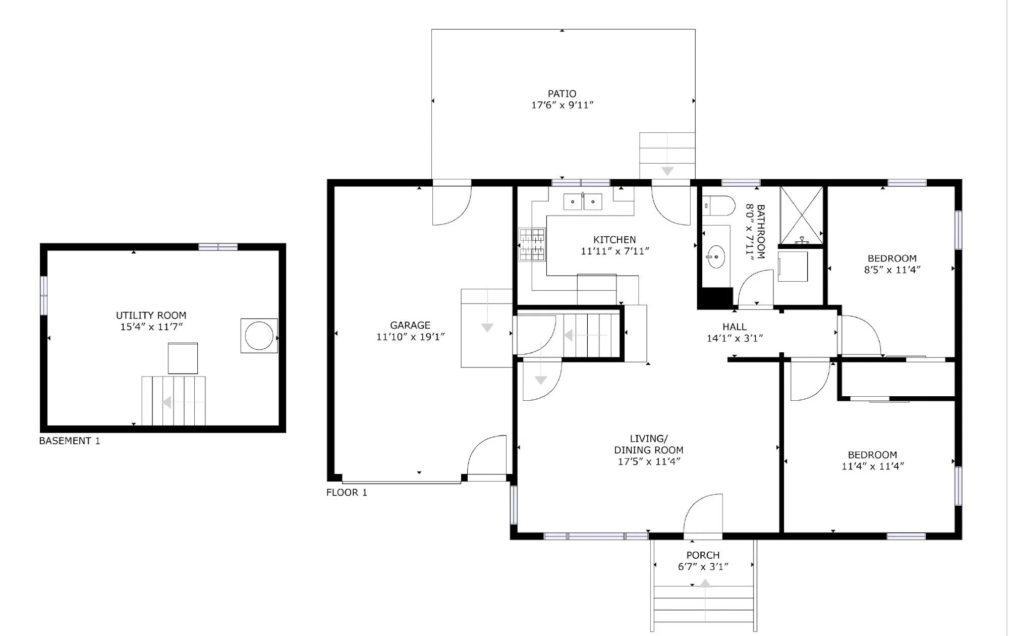
  • Beds: 2

  • Baths: 1

  • Sq footage 900

  • Built 1946


Location

 

Virtual Tour


More Information:

Perfectly positioned with easy access to both historic downtown Bozeman and Montana State University, this charming southside minimal traditional home is the ultimate home base for your Montana lifestyle. With premier shopping, dining, Cooper Park and campus amenities just blocks away, this home is a rare find.

Located within blocks of the university, enjoy music, arts, culture and other amenities that make Bozeman a desirable community. Just 30 minutes to Bridger Bowl, 20 minutes to the airport, 1 hour to Big Sky, 1.5 hr to Yellowstone National Park. Don’t miss the 360 VR virtual Matterport tour!

Built 1946


Gallery:


Explore other featured listings:


Ciera Krinke

At Digital Box Designs we specialize in all things Squarespace web design, and optimize your site through thoughtful and strategic copywriting and search engine optimization.

https://digitalboxdesigns.com/
Previous
Previous

Featured Listing: Lot 15A, TBD Riverway Road | Gallatin River Farm, Belgrade

Next
Next

Featured Listing: 1698 Ryun Sun Way Bozeman MT 59718